Bauauschusssitzung 15.04.2026
Veröffentlichung der Abwägungen
Bericht vom 25. Februar 2026
Warum es uns gibt.
Wir – die Bürgerinitiative Lebenswertes Isernhagen – sind ein Zusammenschluss aus Anwohnern des Bodegeländes, angrenzender Straßen und weiteren Einwohnern Isernhagen HBs. Die Bürgerinitiative Lebenswertes Isernhagen hat sich gegründet, da Einwände von Bürgern gegen den aktuell vorliegenden Bebauungsplan des Neubaugebietes Bodegelände an der Bahnhofstraße bei Politik und Verwaltung keine Berücksichtigung finden. Der Bebauungsplan ist überdimensioniert und fügt sich nicht in den Charakter des Dorfes ein. Um Einfluss auf die Bebauung zu nehmen, informieren wir auf unseren Kanälen, führen Bürgergespräche, sind im Kontakt mit der Politik und sammeln Unterschriften. Unserer Erfahrung nach, sehen viele Einwohner die Entwicklung in unserer Gemeinde ebenfalls kritisch. Was alleine in Isernhagen HB geplant ist, sehen Sie im nächsten Abschnitt.
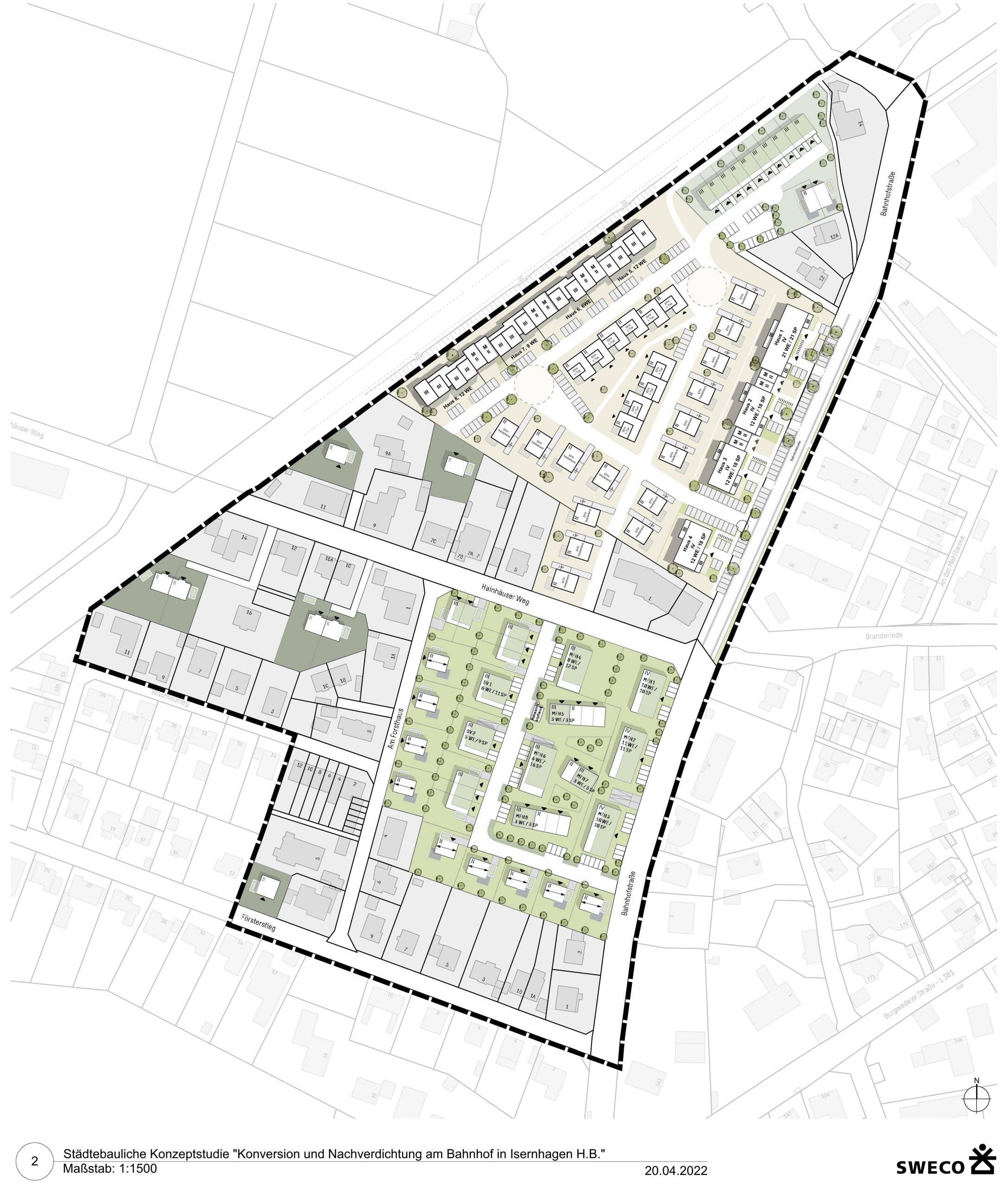
Worum geht es?
Im Jahr 2022 wurde die SWECO-Studie veröffentlicht, bei der eine Planung in dichter Bauweise für die beiden brachliegenden Gebiete über- und unterhalb des Hainhäuserweges vorgenommen wurde. Der obere, hellbraune Bereich umfasst größtenteils das Bodegelände und der untere, hellgrüne Bereich umfasst unter anderem das Ronski-Gelände. Des Weiteren sind in der Studie bereits Wohnhäuser in Hinterlandbebauung auf den Grundstücken unserer Mitbürger geplant (dunkelgrün), ohne dass mit Ihnen im Vorfeld darüber gesprochen wurde. Insgesamt könnten laut der städtebaulichen Konzeptstudie bis zu 241 Wohneinheiten geschaffen werden. Im Rat wurde der Vorlage einstimmig zugestimmt und als Grundlage für die Entwicklung des Gebietes beschlossen. Es wurde schon damals vermerkt, dass die Bahnhofstraße in Sachen Verkehr und Parkplatzmangel problematisch sei.
Die Studie wurde von der Gemeinde an den externen Dienstleister SWECO vergeben. Die Kosten in Höhe von 35.300 € wurden zum größten Teil vom Steuerzahler übernommen. Der Vorhabenträger des Bodegeländes „Deutsche Bauwelten“ beteiligte sich mit 5.000 €.

Was wir fordern.
Allgemein fordern wir die Mitbeteiligung der Bürger an diesem Projekt sowie die Erarbeitung eines Plans zur Gestaltung der Ortschaften und der Gemeinde. Erste Ansätze gab es bereits. In der ISEK-Studie aus dem Jahr 2021 wurden die Einwohner Isernhagens befragt. Die Ergebnisse aus dieser Studie scheinen jedoch bisher keinen Einfluss auf die Entwicklung der Gemeinde zu haben. Denn die Befragten stimmten in Isernhagen HB zu über 90% dafür den Bestand zu pflegen, anstatt Neubaugebiete oder zu Wohnblöcke schaffen. In der gesamten Gemeinde sind 90 % der Befragten der gleichen Ansicht wie die Hohenhorster. Die Nachfrage nach Mehrfamilienhäusern ist mit 5 % sehr niedrig und somit die am wenigsten geforderte Wohnform in Isernhagen. Im Widerspruch zu den Ergebnissen der Studie wird in Isernhagen HB und weiteren Ortschaften kontinuierlich verdichtet und neugebaut. Das neueste Baugebiet – Haselhöfer Vorfeld – wurde erst 2018 fertiggestellt und hat eine Fläche von 2,3 Hektar und 46 Wohneinheiten. Es enthält unter anderem ein Feuerwehrhaus und eine Kita.
Zum Bodegelände lauten unsere wichtigsten Forderungen:
- Eine Anpassung der Gebäude an ihre Umgebung: max. 3-geschossig, eine Höhe von 12 Metern (wie auch 2017 bereits von der Verwaltung gefordert wurde), Satteldächer als häufigste Form im Baugebiet und eine ortsverträgliche Fassadengestaltung
- Eine Verringerung der Wohneinheiten auf maximal 60 bis 80 Wohneinheiten
- Eine Mischnutzung, bei der das altersgerechte Wohnen berücksichtigt wird
- Mehr Grün- und Aufenthaltsflächen, wie ein zentraler Platz und eine weniger starke Versiegelung des gesamten Gebietes
Das Bodegelände
Nach mehreren Nachfragen an die Gemeinde, wurde uns mitgeteilt, dass es keine Visualisierung für das Bodegelände gibt oder geben soll. Um einen Eindruck von dem geplanten Wohngebiet zu bekommen, haben wir eigenständig eine visuelle Darstellung vorgenommen. Dafür haben wir den aktuell zur Abstimmung stehenden Bebauungsplan Nr. 6/188 und die Daten aus diesem, wie mögliche Höhe, die fehlende Beschränkung der Fassadengestaltung und der Dachform, genutzt. Eine mögliche Variante, wie das Bodegelände in ein paar Jahren aussehen könnte, sehen Sie hier:

Der Bebauungsplan Nr. 6/188 sieht an der Bahnhofsstraße 4-stöckige Mehrfamilienhäuser mit einer potenziellen Höhe von 13,5 Metern vor (WA 1, WA 2 und WA 3). Die Länge des größten Hauses würde bis zu über 50 Metern betragen (WA 1). In der Mitte des Wohngebietes könnten Mehrfamilienhäuser, Doppelhaushälften oder Reihenhäuser mit einer Höhe von bis zu 14 Metern entstehen (WA 4 und WA 3). An der Bahntrasse sollen 3-stöckige Gebäude mit einer Höhe von 12 Metern errichtet werden (WA 6). Vereinzelt könnte es neue Einfamilienhäuser geben (WA 5).
Unsere Kritik
Insbesondere die Wohngebiete WA 1, WA 2, WA 3 und WA 4 lassen zu viel Freiraum für den Bauherrn. Die Gebäudehöhe von bis zu 13,5 Metern in diesen Abschnitten fügt sich nicht in die Umgebung ein. Gebäude mit 4 Vollgeschossen gibt es in der Bahnhofstraße, sowie in Isernhagen HB bisher nicht. Es gibt keine Beschränkungen der Fassadengestaltung oder der Verwendung von Materialien.
Insgesamt könnte die Versiegelung der Gesamtfläche bei 70 % liegen, da nicht genügend Grünflächen oder Gärten vorgesehen sind. Diese Prozentzahl ist nicht hinnehmbar. Ebenso besteht die Gefahr, dass die vorgesehene Anzahl an Parkplätzen (225) nicht ausreicht. Der Bericht der Region Hannover aus dem Jahr 2024 zeigt, dass in Isernhagen die Zahl der Personenkraftwagen pro 1.000 Einwohner 716 beträgt und damit einen Spitzenwert in der Region Hannover darstellt. Der Durchschnittswert in der Region liegt bei knapp über 450. Für das Bodegelände würde dies bedeuten, dass bei einer möglichen Zuzugszahl von 450 Personen, die Zahl der zusätzlichen PKW bei 320 liegen könnte. Somit würde die Schaffung von 225 Parkplätzen nicht ausreichen. Die Parksituation an der Bahnhofstraße sowie im Hainhäuser Weg ist bereits angespannt. Weitere parkende Autos dürften die Straßen wohl schwer aufnehmen können.
Die Anzahl von 150 Wohneinheiten ist deutlich zu hoch und könnte – zusammen mit der künftigen Erschließung des Ronski-Geländes, wie in der SWECO-Studie bereits angekündigt wurde – bedeuten, dass bis zu 750 neue Einwohner zu uns ziehen könnten.
Das wäre ein Zuwachs von 18 %. Insgesamt könnten unsere Straßen somit mit bis zu 537 mehr Kraftfahrzeuge belastet werden. Die von der Politik vorgeschlagene Lösungen, einen Umbau der Kreuzung Bahnhofstraße/Burgwedeler Straße umzusetzen und diese mit einer Ampel auszustatten, ist nur aufgrund des erwarteten erheblichen Anstieg des Verkehrs notwendig.
Das letzte Neubaugebiet, das in Isernhagen HB erschlossen wurde, ist das „Haselhöfer Vorfeld“. Die Fläche dort beträgt 2,3 Hektar und die Anzahl der Wohneinheiten beträgt 46. Somit ergibt sich eine Quote von 20 Wohneinheiten/Hektar. Beim Bodegelände liegt diese Quote bei über 45 Wohneinheiten/Hektar.
So könntes es auch gehen.










Wie es auch gehen könnte, zeigt unsere oben zu sehende Visualisierung des bei der Gemeinde eingereichten Konzepts der DIBAG aus dem Jahr 2015.
Was ist bisher passiert?
2015
Erster Vorschlag für das Baugebiet
Anfang 2015 wurde erstmalig ein städtebauliches Konzept für das Bodegelände von der DIBAG vorgestellt. In diesem geht es um 25 Reihenhäuser, 11 Einzel-/Doppelhäuser, 2 Mehrfamilienhäuser und eine Senioreneinrichtung mit 36 betreuten Wohnungen und 101 Einzelzimmern. Dies wurde im Bauausschuss und Gemeinderat besprochen.
2017
Ablehnung von 60 Wohneinheiten
Die Verwaltung lehnt eine Bebauung des Bodegeländes mit 60 Wohneinheiten ab, da erst die Auswirkungen des Haselhöfer Vorfeldes auf die bestehende Infrastruktur der Kinderbetreuung und des Grundschulbereichs abgewartet werden müssten.
2018
Erwerb des Bodegeländes durch Heinz von Heiden
Die Tochterfirma „Deutsche Bauwelten“ erwirbt das Grundstück von dem vorherigen Eigentümer.
2019-2021
Durchführung der ISEK-Studie
Im Zeitraum zwischen 2019 und 2021 wurden die Bürger Isernhagens befragt, wie die Zukunft Isernhagens gestaltet werden soll.
2020
Städtebaulicher Vertrag mit Deutsche Bauwelten
Die Gemeinde Isernhagen unterschreibt einen nicht einsehbaren städebaulichen Vertrag mit Deutsche Bauwelten.
2022
Vorstellung der SWECO-Studie
Im Orts- und im Gemeinderat sowie im Bau- und Verwaltungsausschuss wird der Auftrag für eine städtebauliche Konzeptstudie „Konversion und Nachverdichtung am Bahnhof in Isernhagen H.B.“ beschlossen. Die Kosten dafür betragen 35.300 €. Die Deutsche Bauwelten übernimmt nur 5.000€ des Betrages.
Ende 2024
Entwurf des ersten Bebauungsplans
Es wurde der erste Bebauungsplan eingereicht und in den entsprechenden Gremien behandelt. Mittlerweile wird mit 150 Wohneinheiten geplant.
12.01. – 12.02.2026
Erneute Auslegung des Bauplans
Am 12. Januar wurde der Bebauungsplan online ausgelegt. Wir Bürger hatten die gesetzlich vorgesehene Möglichkeit, den Bebauungsplan einzusehen, und konnten unsere Kritik in Form von Einwendungen einreichen.
19.03.2026
77 Einwendungen und 194 Seiten Inhalt
Die Bürger Isernhagens haben ihre Bedenken bezüglich der Bebauung des Bodegeländes geäußert. Nach Auswertung durch die Gemeinde gibt es keine notwendingen Änderungen am Bebauungsplan.
13.09.2026
Bürgermeister- und Kommunalwahl
Am 13. September steht die Kommunalwahl an.
Was kann ich tun?
Mit Nachbarn und Bekannten sprechen
Wir haben bereits viele Gespräche mit unseren Mitbürgern geführt. Beim erfolgreichen Unterschriftensammeln sind wir bereits von Tür zu Tür gegangen und konnten schon viele von Ihnen informieren. Da noch nicht jeder in unserer Gemeinde weiß, was konkret auf dem Bodegelände entstehen soll und welche Effekte dies auf unseren Ort haben könnte, würden wir Sie bitten, mit Ihren Nachbarn und Bekannten zu sprechen. Teilen Sie ihnen gerne mit, welches Ausmaß das Projekt haben wird, und überzeugen Sie sie, dass wir zusammen Einfluss auf die politischen Entscheidungen nehmen müssen.
Mit unseren politischen Vertretern reden
Senden Sie eine E-Mail an Ihre Vertreter in der Gemeinde Isernhagen und teilen Sie ihnen Ihre Meinung mit.
Tim Mithöfer, Bürgermeister (CDU)
Simon Müller, Bürgermeister Isernhagen HB und Mitglied im Gemeinderat (CDU)
Vanessa Schenke, 1. stellvertretende Bürgermeisterin und Mitglied im Verwaltungsauschuss (CDU)
Ortsverband Isernhagen BÜNDNIS 90/DIE GRÜNEN
Philipp Neessen, Fraktionsvorsitzender im Rat und Bürgermeisterkandidat der SPD
Harald Müller, Gemeinde- und Ortsratmitglied (SPD)
Maike Assadi, Ortsratmitglied (SPD)
Unterschreiben Sie unsere Petition
Besuchen Sie relevante Sitzungen des Gemeinderats und den Ausschüssen
Unser Ortsrat war bereits am 11. September überrascht, wie stark die Teilnahme an der damaligen Ortsratssitzung und wie groß der Unmut über das Projekt „Bodegelände“ war. Auch bei weiteren Veranstaltungen unsererseits und seitens der Politik waren viele von Ihnen anwesend. Weiterhin ist es wichtig, unseren politischen Vertretern zu zeigen, dass es nicht nur ein paar Wenige sind, denen das Vorhaben missfällt.
Informieren Sie sich bei uns über aktuelle Themen/Nehmen Sie mit uns Kontakt auf
Veranstaltungen und Termine
Bevorstehende politische Sitzungen, Infoveranstaltungen der Bürgerinitiative und weitere Termine:
Auslegung des Bebauungsplans bis zum 12.02.2026
Während der Auslegungsfrist können Stellungnahmen zu den o. g. Änderungen und Ergänzungensowie ihren…
Unterschriftenübergabe
Am Montag den 25.01 übergaben wir im Rathaus in Altwarmbüchen die über 500 Unterschriften aus der On…
Alternativ können Sie aktuelle Veranstaltungen der Politik in Isernhagen über das Bürgerinfoportal der Gemeinde Isernhagen einsehen.
Kontakt
Für einen weiteren Austausch können Sie unserer WhatsApp-Gruppe beitreten. Sollten Sie konkrete Anliegen haben, können Sie sich per E-Mail an uns wenden. An weitere Informationen – offizielle Dokumente wie Baupläne oder veröffentlichte Niederschriften unsererseits – gelangen Sie über unseren Dropbox-Link. Ihre Meinung zum Projekt des Bodegeländes können Sie in Kommentarform auf unserer Petitionsseite bei openPetition kundtun.








